ЭТА СТРАНИЦА В РАЗРАБОТКЕ.
Здесь мы показываем актуальные проекты. Например, последний из них будет в процессе разработки. Но ведь процесс тоже интересен!
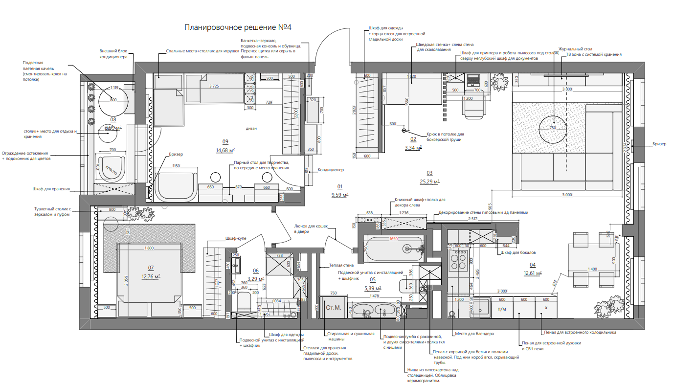
ЖК «Притяжение»,
Екатеринбург, ул. Академика Парина 13/2.
Здесь мы прочувствовали, как это важно — выбирать «своих» строителей.
Планировочное решение:
Обошлись без переноса перегородок, но значительно изменили геометрию стен в санузле и организовали коммуникации для ванны (от застройщика не было вывода труб ХВС, ГВС и канализации). Да и такое тоже встречается.

Концепция интерьера этой квартиры была разработана в коллажах.



Фото в процессе:



Офис «ГорФинУрал»
г. Екатеринбург, ул. Московская д. 35



А когда-то тут был потоп…
Здание, в котором расположилось наше помещение было построено в 50-х годах 20-го века, оттого стены «сыпались», после потопа появилась плесень, стены сохли долго с помощью пушек, но не смотря на весь масштаб проблем, мы справились с задачей чуть меньше, чем за 4 месяца от начала проекта до торжественного открытия филиала.
Это наше «ДО»



Немного эскизов мебели:



В процессе…




Открытие офиса






Что говорят наши заказчики:
Мы рады творить красоту!
для связи и заказа услуг жми на кнопку ниже























Марина Размыслович
Ооооо, Аня, я просто без ума от того, что ты сделала с нашей квартирой! 😍 Это какая-то магия — как ты превратила обычное жильё в сказочное пространство, где сразу хочется остаться жить! И знаешь, что самое офигенное? Мы сдали квартиру С ПЕРВОГО просмотра!!! И на 20% ДОРОЖЕ, чем планировали! 🚀💰 Первые же арендаторы вошли, ахнули и сразу сказали: «Берём!» — вот это дааа! Ты — гений, потому что: — Подобрала такую мебель и декор, что аж дух захватывает 🤩 — Сделала квартиру визуально больше и удобнее (как вообще так можно?!) — Добавила те самые «фишечки», от которых все ахают — И всё это быстро, без нервов и с душой! Спасибо тебе огромное за крутой результат! Теперь всем друзьям буду рассказывать, какой ты топовый специалист 😎 P. S. Мы мужем уже мечтаем, чтобы ты и нашу новую квартиру так же классно «зачаровала» 😉💫
Алёна Халяпина
Привет! Аня, я наконец-то добралась до отзыва! Благодарю тебя за работу и включённость практически 24/7, даже в новогодние праздники. Я как вспомню, мне даже страшно — с чего мы начали и к чему пришли в итоге. Обожаю твою отзывчивость, желание придти на помощь, найти нужные варианты. Ты первая, кто откликнулся на мой запрос: сделать всё с нуля, быстро с учётом страшного потопа, другие просто говорили, что я прошу звезду с неба и клали трубку. Сейчас сама, находясь в нашем супер классном и современном офисе, каждый раз радуюсь и получаю эстетическое удовольствие. Всё от штукатурки до кашпо продумано, выбрано, согласовано и заказано с твоей помощью! Большое тебе спасибо 🩵 Без тебя мы бы до сих пор делали этот ремонт!
Оксана Федорова
Хотим поблагодарить Анну и всех причастных за профессиональную работу над дизайном нашей квартиры. С самого начала вы взяли на себя все ключевые задачи: от разработки концепции до подбора материалов и контроля за ремонтом. Это позволило нам сэкономить время и избежать лишних хлопот. Особенно отметим внимательный подход к нашим пожеланиям по функциональности и эстетике. В итоге получился гармоничный интерьер, где продумана каждая деталь. Приятным бонусом стали персональные скидки — благодаря этому проект уложился в запланированный бюджет без ущерба для качества. Авторский надзор был действительно полезен: вы оперативно решали возникающие вопросы, и ремонт прошёл без задержек. В результате мы получили комфортное и стильное пространство, полностью соответствующее нашим ожиданиям. Спасибо за чёткую организацию процесса и приятное сотрудничество!